OBJD_H1_TITEL - Studentenstadt Krems - bestens vermietbare Anlegerwohnungen in denkmalgeschütztem Altstadtjuwel             PAGE_BACK

OBJD_ANBOBJID (OBJ_ANBOBJID_INTERN: 96855)
OBJ_TITLE Studentenstadt Krems - bestens vermietbare Anlegerwohnungen in denkmalgeschütztem Altstadtjuwel
OBJ_ADDRESS
BD_LOCATION_1 Margarethenstraße, 1
BD_LOCATION_2 AUT - 3500 Wachau - Krems an der Donau
OBJ_GENERAL_PREISE
OBJ_KAUFPREIS 250,000 EUR
OBJ_BASISINFO
OBJ_KAT IMMO_WOHNUNG
OBJ_TYP WHG_3_ZIMMER
OBJ_ART_EXPOSE OBJ_KAUF
OBJ_WOHNFL 53 m²
OBJ_T_ZIMMER 2
OBJ_STELLPL_ANZ 1
OBJ_SCHLAFZ 1
OBJ_BADEZIM 1
OBJ_BALKON_ANZ 1
OBJ_ENERGIE OBJ_ENERGIE2
OBJ_ZUSTAND OBJ_ZUSTAND8
OBJ_DESCR_HEAD
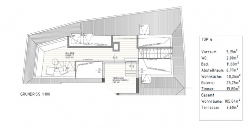
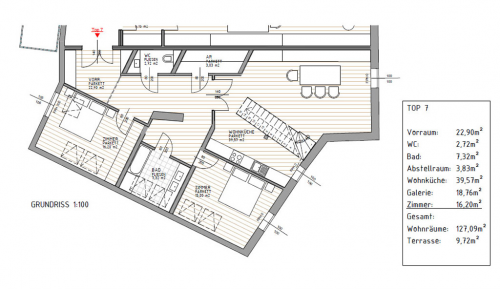
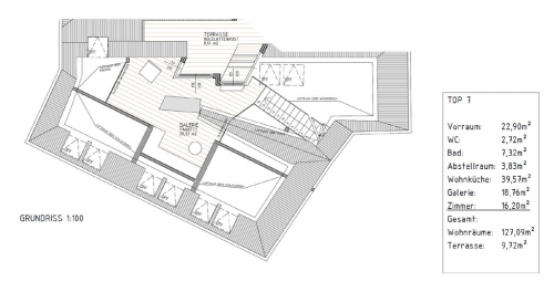
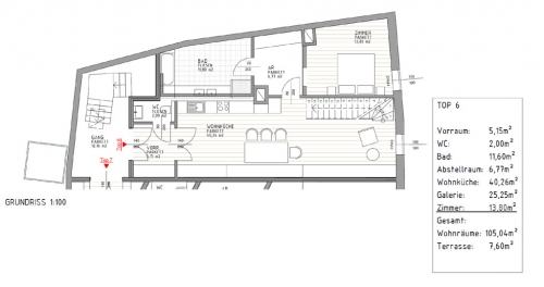
OBJ_DESCR PROVISIONSFREI VOM EIGENTÜMER Zum Verkauf gelangen 4 Eigentumswohnungen mit jeweils 2 Zimmer zwischen 50 und 70m². Die Wohnungen liegen im ersten und zweiten Stock, die durchdachte Grundrisse fügen sich perfekt in die bestehende Struktur ein und schaffen somit optimale (Wohn)Raumverhältnisse - ideal zur Vermietung oder auch Eigennutzung geeignet. Ein Dachausbau ist in 2 Varianten möglich, in der ersten Variante werden 2 Dachmaisonetten mit 105 bzw. 127m² geschaffen, in der zweiten Variante wird eine Maisonette mit 231m² errichtet. In beiden Variante sind großzügige Terrassen geplant, die zum Entspannen einladen.
OBJ_LAGEBESCH Das Haus, ein denkmalgeschütztes Altstadtjuwel, liegt nur wenige Minuten von der Gozzoburg entfernt direkt im Zentrum von Krems und wurde in Abstimmung mit dem Denkmalamt liebevoll revitalisiert. Die IMC Fachhochschule ist bequem zu Fuß, die Universität Krems binnen 10-15 Minuten erreichbar, auch Geschäfte des täglichen Bedarfs und Restaurants finden sich in der Nähe des Hauses.
OBJ_AUSSTATTU In sämtlichen Wohnungen ist hochwertiger Parkett verlegt, die Musterwohnung Top 2 verfügt bereits über eine Einbauküche und ein verfliestes Badezimmer, in den übrigen Einheiten sind keine Einbauküchen vorhanden und der Käufer kann die Fliesen im Badezimmer noch bestimmen.
OBJ_SONSTIGES Der HWB beträgt 113 kWh, die VB für die einzelnen Wohnungen beträgt jeweils: Top 2: Eigennutzung: Euro 250.000.- Vorsorgemodell: Euro 230.000.- + Ust. Top 3: Eigennutzung: Euro 285.000.- Vorsorgemodell: Euro 265.000.- + Ust. Top 4: Eigennutzung: Euro 250.000.- Vorsorgemodell: Euro 230.000.- + Ust. Top 5: Eigennutzung: Euro 280.000.- Vorsorgemodell: Euro 260.000.- + Ust. Die Preise für die Dachwohnungen: auf Anfrage in Abhängigkeit von der Ausbauvariante.
OBJ_AUSSTATTU
OBJ_HEADLINE_2
OBJ_EBK,
OBJ_HEADLINE_3
OBJ_DUSCHE,
OBJ_HEADLINE_4
OBJ_PARKETT, OBJ_106
OBJ_HEADLINE_5
OBJ_111,
OBJ_HEADLINE_7
OBJ_114,
OBJ_ENTFERNUNGEN
BD_SHOW_ALL_OBJECTSBD_SHOW_ALL_OBJECTS            BD_DL_PDFBD_DL_PDF            

                                    
Hier können Sie Kontakt mit dem Anbieter aufnehmen
BD_PM_INFOTEXT
BD_PM_SUBJECT Studentenstadt Krems - bestens vermietbare Anlegerwohnungen in denkmalgeschütztem Altstadtjuwel
UCP_USR_CONT_NAME*
UCP_USR_STREET*
UCP_USR_STREETNO*
UCP_USR_ZIPCODE*
UCP_USR_CITY*
UCP_USR_TELNO*
UCP_USR_HANDYNO
UCP_USR_EMAIL*
Teilen Sie uns Ihren Wunsch mit: Bitte senden Sie mir Informationsmaterial
Ich bitte um einen Besichtigungstermin
Bitte rufen Sie mich zurück
Bitte senden Sie mir Informationen per Email
BD_PM_MAILTEXT
Sicherheitscode: